Condominio “La Pettina”

Fabbricato industriale ex Pettinatura Italiana, sito in Via Sella 20 Vigliano Biellese ( Biella )

Centro IDRO ECOLOGICO, con depurazione acque reflue

1BEE FINTECH S.r.l. innovativa italiana
Attività: fintech, sviluppo software, database, ricerca & sviluppo, proprietà intellettuale.
Ruolo: detentrice della tecnologia informatica e controllo degli asset intangibili della BEE Capital Group LTD e altri
2BEE Capital Group LTD UK
Attività: attività finanziaria, operazioni commerciali, servizi finanziari B2B, reward crowdfunding
Ruolo: utilizza software e tecnologia concessa in licenza dalla S.r.l. italiana; in consulenza legale-amministrativa le attività finanziarie in escrow ( tesoreria ) delle consociate e controllate. Gestisce i patrimoni, gli immobili, gli impianti, le infrastrutture utilizzate dalle controllate, consociate e partecipate
3BEE ENGINEERING – studio di ingegneria ambientale
4TACSI – TRASPORTI ACCOMPAGNATI COMBINATI, SPECIFICI, SPECIALI, INTERMODALI – trasporti, trasporti in ADR, trasporti rifiuti, logistica
4bmagazzinaggio, deposito temporaneo, deposito giudiziale,
4cdeposito temporaneo rifiuti
5BI RENT – noleggio auto, autocarri, camion, mezzi specifici e speciali, piattaforme aeree, droni, con e senza autista o pilota
5bnoleggio attrezzatura da lavoro, giardinaggio,
6CONDOMINIO “LA PETTINA” – uffici contabilità + sale riunioni
Gestione condominio + custodi + abitazioni custodi + portineria principale, reception + portineria cortile +DORMITORIO + CORTILI COMUNI + PASSAGGI SICUREZZA + SCALE + ASCENSORI
7BI.MAINTENANCE – impresa edile e manutenzione impianti
8PLASTRURGICA HOLDING LTD – compravendita materie plastiche e alluminio, materie prime, prime-seconde, rifiuti non pericolosi e riciclo con e senza trattamento + macchinari RVM
8bstampaggio plastica
8cFonderia metalli non ferrosi ( alluminio )
8dtrattamento di poliaccopiati in alluminio
End of Waste polycompound alluminium
End of waste alluminium
End of waste plastic
9CEVB-LP – Centro Ecologico Vigliano Biellese “La Pettina”- raccolta, deposito , trattamento e compravendita di rifiuti normali, speciali e pericolosi + RAEE
( settore edilizia ) Cartongesso, tubi siliconici, vernici, ( settore ristorazione ) olio fritto, ( settore automotive ) olio lubrificante, additivi vari settore automotive, filtri oli, serbatoi, batterie auto , batterie varie, gomme, PFU, ( settore sanitario ) cannucce, siringhe, flebo, sacche ( settore farmaceutico ) packaging con pastiglie, flaconi, ( settore elettrodomestici ) lavatrici, forni, lavastoviglie, pannelli fotovoltaici, schede elettroniche, computer, telefonini, toner, stampanti, ( altri settori ) estintori, apparecchi di sicurezza e antincendio
End of Waste RAEE. Ferroso e non ferroso
End of Waste cartongesso
End of Waste vernici
End of Waste olii motori e lubrificanti
End of Waste fitosanitari, farmaceutico, chimico, ospedaliero
End of Waste gomme e PFU
End of Waste estintori e apparecchi di sicurezza e di antincendio
10LAVA.BI – LAVANDERIA INDUSTRIALE BIELLESE – lavanderia industriale e trattamenti idro con detergenti e tensioattivi vari , altri prodotti chimici in genere, ivi compreso quelli criogenici di articoli industriali e rifiuti
Trattamento acque e liquidi.
11BI.WASH – Spurghi civili e industriali. Minispurghi. Derattizzazioni, e simili. Noleggio bagni chimici e attrezzature per il lavaggio e la pulizia industriale
Lavaggio e sanificazione certificata per Auto, camion, Tir, Cisterne, per ADR, e Derrate Alimentari e altri
12BI.WORK RENT – noleggio attrezzature e abbigliamento da lavoro
13BEE FRANCHISING – Network di assistenza tecnica e commerciale, dei prodotti e servizi del gruppo BEE Capital Group > front office, contatto clienti
14BEE PAWNSHOP – micro prestiti e micro finanziamenti con pegno di beni mobili ( da quota azionarie, brevetti, marchi, macchinari, a oggetti d’ arte, antiquariato e altro )
15BEE HUB & INNOVATION – fab lab, officine varie, uffici, laboratori di prove tecniche e sperimentazione, realizzazione prototipi. Produzione Totem Pay. Su misura e dedicati.
16BEE HYVE, datacenter, database, help desk, back office, cybersecurity, servizi di sicurezza e vigilanza privata.
17BI ENERGY, GAS & OIL – deposito e compravendita di gas tecnici e produzione di olio pirolitico, Compravendita di olio minerali, combustibili, sintetici, naturale e alimentari,
17bCentrale termica
17cCentrale di produzione energia elettrica in genere. Fotovoltaico, idroelettrico, eolico
17dProduzione olio pirolitico, centrale termoelettrica, da pirolisi di plastiche pure.
End of waste plastics
18BI.WOOD – commercio, riparazione e produzione imballaggi in legno ( pallet e casse ) nuovi e usati, recupero scarti legnosi – produzione pellet
produzione pellet
End of Waste legno
19BI.PACK – commercio, riparazione, e produzione imballaggi ( fusti, cisterne, bidoni, cassette della frutta, ecc ) nuovi e usati, con trattamento di lavaggio
End of Waste packaging, plastic, wood, iron, paper
20BI.GREEN manutenzione del verde, commercio fertilizzanti e prodotti chimici per l’ agricoltura, produzione di colture vegetali ( fiori, piante, ecc ).
allevamento animali ( elicicoltura ) e itticoltura ( pesci, alghe, fiori di loto, ecc )
Tecnologie innovative per l’ agricoltura.
Irrigazione e fertilizzazione con droni
End of Waste “verde”
21DRONEPORTO – Area di volo, Noleggio droni, con e senza pilota
scuola di volo con droni
Produzione e Manutenzione ( con officina ) di droni.
22TRI.RESIN – riparazione e produzione articoli in vetroresina e vernici
22bproduzione serramenti e altri articoli in vetroresina.
22cTrattamento e recupero vetroresina
Trattamento e recupero vernici
End of Waste resinglass
End of waste vernici
23BI.BOAT Riparazione e produzione barche in vetroresina, e articoli vari
End of Live Boat
24CAR.IND.BI allestimento veicoli industriali, carrozzeria e meccanica industriale + verniciatura
25BI.TEXT. Commercio in scarto tessile, rifiuti tessili, abbigliamento di scarto, Trattamento tessile con sfilacciatura
Produzione e noleggio materassi e coperte per comfort di animali da allevamento . Produzione capi abbigliamento animali da allevamento
End of Waste – textile
26FIENOPLAST filatura in poliestere, materassi tecnici e imbottiture in poliestere
27BIRRERIA BELLA – produzione birre e analcolici con assaggio e degustazione
28COPERNICO co-working, fab lab, lab start up
29COPERNICO co-working, fab lab, lab start up
30BI.SERVICE area portineria + reception + arrivo>/partenza e smistamento posta + hostess di piano + sicurezza generale + antincendio di base + controllo pesa + curtesy area attesa clienti/fornitori + cral aziendale + bar + mensa aziendale + gestione spogliatoi + palestra + area relax + altro ( infermeria + medicale + barber + manicure + ecc )
30barea portineria cortile, attesa autisti, relax + bagni autisti
31BI.STOCK area commerciale di stock prodotti, o cambi merce pubblicitari, ecc
32BIELLA WATER LOOP SOLUTION, scrl, società consortile di trattamento reflui e acque sporche
Gestione di rifiuti liquidi
End of waste fanghi
33BI.CREMATION Cremazione e suoi servizi connessi
End of life animal
34COSTRUZIONI SASSI SRL – immobiliare
35IMMOBILIARE BIAGHERINA SRL – immobiliare
36RACLAS SAS – agenzia immob
REGOLAMENTO CONDOMINIALE
a) registro dei verbali di assemblea;
b) libro di cassa delle entrate e delle uscite
c) registro dei Partecipanti con le loro generalità e il loro domicilio o sede sociale
d) retribuzione dell’amministratore condominiale
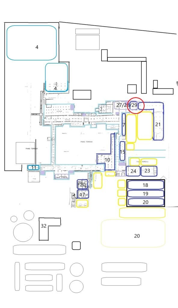
e) disegni e planimetrie di identificazione aree comuni
f) schemi impianti d’ uso per le parti comuni con loro certificazioni
g) tabelle millesimali
h) inventario beni di proprietà condominiale
i) dipendenti del Condominio
l) elenco fornitori e consulenti abituali per interesse del Condominio
USI COMUNI
sale riunioni in palazzina uffici ( su prenotazione )
Dormitori ( su prenotazione )
corridoi, scale, ascensori, cortili comuni, uscite di sicurezza, griglie di aerazione, camini, esalazioni, impianti verticali e orizzontali e diagonali di interesse condominale
servitù reciproche
aree carico e scarico per merce e manutenzioni adibita all’ uso ed esercizio del Condominio
insegne e pubblicità, cartelli stradali
proprietà, possesso, gestione, custodia, manutenzioni ordinarie e straordinarie di:
Wi-fi pubblico e privata con registrazione, rete di trasmissione dati , fibra ottica, rete telefonica, telefoni, centralino in voip, ecc
software gestionale area
monitor, tv, telecamere, sicurezza in genere,
assicurazione condominiale
antincendio parti comuni, compreso di rete e impianti, compreso cassette, manichette, estintori, colonnine, rilevatori idranti, splinker, ecc
abbigliamento da lavoro hostess di piano e personale addetti alle manutenzioni condominiali
vasche recupero acque per antincendio e irrigazione verde e ornamentale
uso mensa e bar
hostess di piano
portineria
Custodi 24h
pulizie corridoi al piano e cortile, in area comune
manutenzione e pulizia ordinaria parti comuni ( compreso porte e vetri, cancelli, facciate, tetti, gronde ) escluso straordinarie
pannelli solare termico per acqua calda
acqua calda e fredda uso bagni comuni
rete idrica di captazione e presa dalla falda
rete idrica e impianti di acqua potabile
vasche acque e verde ornamentale
rete idrica e gestione acque bianche per irrigazione e pulizia parti comuni, vasche e aree verdi ( ornamentale e non )
Rete idrica e gestione acque bianche fino allo smaltimento alla fognatura comunale
Rete idrica e gestione acque nere fino allo smaltimento alla fognatura comunale
Rete idrica e gestione acque grigie fino al depuratore del Consorzio
pannelli fotovoltaici per illuminazione parti comuni
rete elettrica e impianti di illuminazione tutte, parti comuni e private, condominiali escluso macchinari con presa e consumo superiore a 1kW
centrale elettrica
rete di distribuzione e impianti di acqua calda per riscaldamento, ove previsto nelle parti comuni
Centrale termica
rete di distribuzione e impianti del metano fino alle caldaie della centrale termica per riscaldamento e uso parti comuni
centrale pneumatica ( aria compressa )
rete di distribuzione e impianti di aria compressa per uso parti comuni e fino all’ attacco dell’ utensile
corrente elettrica illuminazione
manutenzione verde comune
attrezzatura sportiva e aree relax nel verde condominiale
marketing e pubblicità “Condominio La Pettina”
posti auto comuni per ospiti occasionali
Aree riservate a movimento mezzi per manutenzioni e sicurezza
ADDEBITI PERSONALI
uso sale riunioni
uso dormitori
gestione ore extra per manutenzioni e servizi
contacalorie riscaldamento
contalitri acqua calda
contalitri acqua fredda
contatore corrente macchinari
contalitri aria compressa
uso posti auto assegnati
alimentari e bevande in mensa
alimentari e bevande alle macchinette automatiche
gestione rifiuti personali
insegne e pubblicità, cartelli stradali per uso personale

Carrello
Torna in alto